Добро пожаловать на http://vipplan.ru

Випплан Сургут - это тысячи проектов домов в нашем каталоге!

Вы всегда сможете найти для себя проект дома вашей мечты! Даже если этого не случилось, мы готовы в любую минуту предложить проект индивидуального дома.

Забыли пароль?
Вы еще не регистрировались?

Перейдите по ссылке ниже на страницу регистрации.

Регистрация...

Внимание!!!

В проектную документацию могут быть внесены изменения любой сложности, в соответствии в Вашими пожеланиями!

Полезные статьи

Искусственный камень

Среди современных материалов, особого внимания заслуживает искусственный камень. Естественность и красота натурального камня очевидна. Но нужно реально оценивать свои возможности и присмотреться именно к искусственному камню, так как сам искуственный камень и стоимость производства работ с ним в Сургуте значительно дешевле чем натуральный....

Проект дома

Строительство дома начинается с подготовительного этапа, основной частью которого является проект. Разработка дизайнерского проекта сопровождается оформлением документов после выбора участка....

Проекты домов и коттеджей > Каталог проектов домов > Проект двухэтажного дома с эркером Vg2274

Проект двухэтажного дома с эркером Vg2274

Проект двухэтажного дома с эркером
Зарегистрируйтесь

Проект № Vg2274


Техническое описание
Общая площадь: 107.77 м2
Жилая площадь: 58.34 м2
Высота здания: 8.13 м
Размеры дома: 13.39м×8.78м
Кол-во комнат: 4
Цокольный этаж: нет
Гараж: нет
Мансарда: нет

Kонструкция
Фундамент: ленточный монолитный
Перекрытия: деревянные балки
Материал стен: Дерево

Архитектурный раздел
Конструктивный раздел
АР+КР - 48 000 (Со скидкой 20%)
Проект индивидуального двухэтажного жилого дома с размерами здания 13,39 x 8,78 м. Наружная отделка здания –металлосайдинг. Фундамент –ленточный монолитный. Наружные стены - 1 этаж- пенобетонные блоки, утепление минеральной ватой и отделка металлосайдингом, 2 этаж- клееный брус, утепление минеральной ватой, с отделкой металлосайдингом. Внутренние стены - пенобетонные блоки, клееный брус. Перегородки – пенобетонные блоки, ГКЛ на металлическом каркасе. Пол первого этажа - пол по грунту. Межэтажное перекрытие - деревянные балки. Крыша четырехскатная. Кровля – металлочерепица. Окна — металлопластиковые
Генплан застройки участка / Паспорт проекта 7000 руб / 10000 руб
Инженерный раздел (полный) 54000 руб
Смета на строительство 27000 руб
Теплотехнический расчет материалов стен Бесплатно
Стоимость проекта со незначительнми изменениями 57300 руб
Стоимость проекта со средними изменениями* 65400 руб
Стоимость проекта со значительными изменениями** 67600 руб

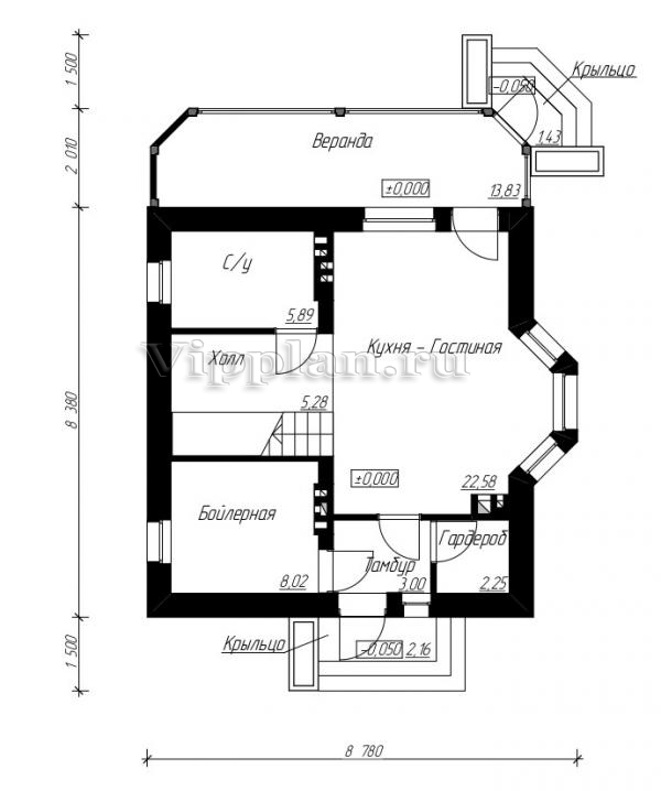
План первого этажа


Тамбур — 3,00 кв м
Гардероб — 2,25 кв м
Бойлерная — 8,02 кв м
Гостиная — 22,58 кв м
Холл — 5,28 кв м
С/у — 5,89

Проект двухэтажного дома с эркером

Проект двухэтажного дома с эркером

План второго этажа


Холл — 4,48 кв м
С/у — 6,68 кв м
Спальня — 10,90 кв м
Спальня — 15,87 кв м
Кабинет — 8,99 кв м
Проект двухэтажного дома с эркером Проект двухэтажного дома с эркером Проект двухэтажного дома с эркером Проект двухэтажного дома с эркером
Внесение изменений и привязка к участку строительства

В любой из проектов от компании VIPplan - Сургут по вашему желанию могут быть внесены изменения в материалы стен, материалы наружной отделки дома, а также будет произведена адаптация проекта под конкретный регион строительства (с учетом грунтов региона, геологических особенностей вашего участка и местных климатических условий) - БЕСПЛАТНО !!! (кроме проектов со скидкой и проектов наших партнеров).

Любой из проектов, размещенных на сайте surgut.vipplan.ru мы можем выполнить из требуемых вам строительных материалов: ячеистый бетон (газобетон, пеноблок), керамоблок, кирпич, шлакоблок, бетонный блок, дерево (брус, клееный брус), каркасная технология (деревянный каркас, металлокаркас (ЛСТК)).

Фасад дома и его наружную отделку так же возможно выполнить с применением различных облицовочных материалов: структурной штукатурки, (с утеплителем и без), сайдингом (пластиковый или металлосайдинг), фиброплитами, кирпича.

 
6 Избранные
проекты

Доставка проектов по России: Москва (Московская область), Санкт-Петербург (Ленинградская область), Краснодар, Ростов-на-Дону, Ставрополь, Сочи, Волгоград, Новосибирск, Белгород, Брянск, Воронеж, Саратов, Хабаровск, Астрахань, Нальчик, Владикавказ, Екатеринбург, Тюмень, Самара, Нижний Новгород, Казань, Пермь, Уфа, Челябинск, Красноярск, Ханты-Мансийск, Иркутск, Курган, Оренбург, Омск, Томск, Барнаул, Новокузнецк, Кемерово, Абакан, Чита, Якутск, Южно-Сахалинск, Петропавловск-Камчатский и страны ближнего зарубежья: Белоруссия, Украина, Казахстан